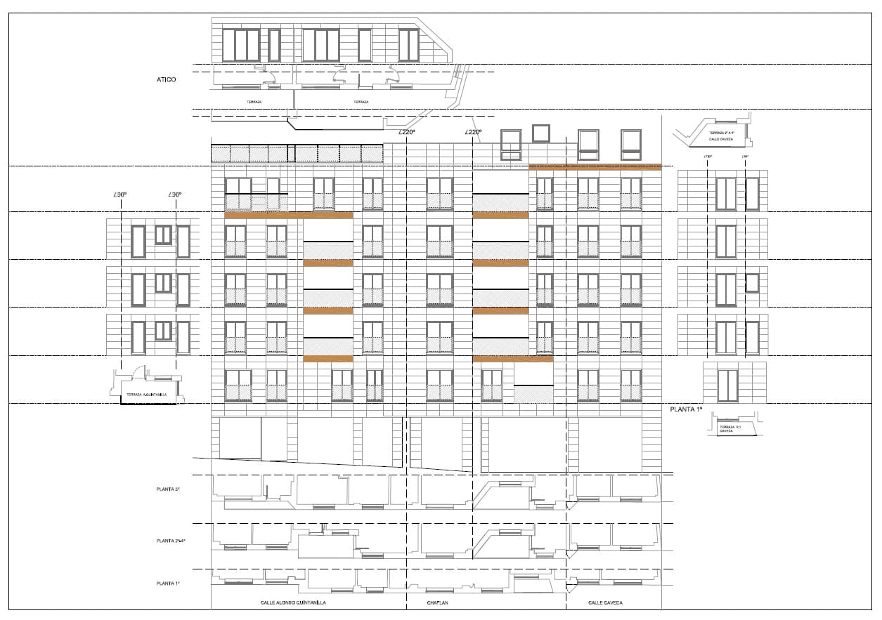
12 viviendas en Alonso Quintanilla. Oviedo

12 viviendas en Alonso Quintanilla, Oviedo

2018-2024

12 viviendas en Alonso Quintanilla Oviedo

Arquitectos – Eva Morán y Damián Fandos

Constructor – Construcciones Mario

Estructura – Cesar López

Ingeniería – Deva proyectos

Aparejador – Celestino Rodríguez

12 viviendas en Alonso Quintanilla, Oviedo
12 viviendas en Alonso Quintanilla, Oviedo